



🏗️ GEDA 500 Z/ZP: potenza, versatilità e sicurezza per i cantieri di ogni dimensione
La piattaforma di trasporto ideale per i lavori più impegnativi – Disponibile a noleggio
Il GEDA 500 Z/ZP è progettato per affrontare anche le sfide più dure in cantiere, combinando robustezza, efficienza operativa e flessibilità d’uso. Grazie ai due comandi separati, può funzionare sia come montacarichi per materiali sia come piattaforma di trasporto per persone e carichi, rendendolo uno strumento fondamentale per ponteggiatori, imprese edili e restauratori.
🔧 Prestazioni professionali per cantieri ad alta intensità
- Portata massima: 1000 kg (fino a 5 persone)
- Velocità di sollevamento: 24 m/min in modalità montacarichi e 12 m/min in modalità trasporto passeggeri
- Altezza operativa fino a 100 m – per costruzioni a più piani senza compromessi
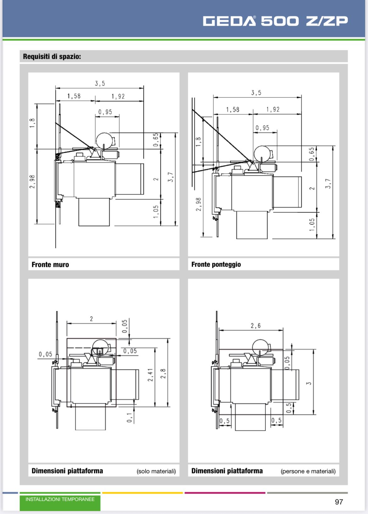
- Spaziosa piattaforma di carico (senza copertura) – adatta a tutti i materiali da costruzione
- Design compatto con requisiti di spazio minimi – perfetto anche in ambienti ristretti
⚙️ Massima adattabilità e sicurezza certificata
- Diverse configurazioni di piattaforma disponibili (con porte, rampe e accessori opzionali)
- Cancelletto ai piani incluso per una movimentazione sicura
- Sistema X-MAST GEDA: stabilità e compatibilità con altre piattaforme della gamma
- Binari con motore da 2,8/5,5 kW – 400 V / 50 Hz / 16 A
- Dispositivo di arresto automatico, avviso acustico e test di caduta con freni certificati
- Interruttori di fine corsa superiori e inferiori con sistema di emergenza
- Dispositivo di sicurezza contro il sovraccarico con segnalazione immediata
📦 Unità di base completa:
- Sezione di base con 4 piedini regolabili
- Colonna base da 2,3 m
- Telecomando con cavo da 5 m
- Comando fisso con interruttore a chiave, comando montaggio e presa 230 V
- Punti di aggancio per sollevamento con elevatore a forche
- Attivatori finecorsa per fermate intermedie (uno per piano + emergenza)
- Sistema di segnalazione acustica a 2 m dal suolo
🚀 Una risorsa indispensabile per ogni fase del cantiere
Dalla posa del ponteggio alla gestione quotidiana del cantiere, il GEDA 500 Z/ZP garantisce logistica fluida, sicurezza operativa e risparmio di tempo. La sua struttura solida e modulare, unita alla compatibilità con altri modelli GEDA, lo rende un investimento strategico per ogni progetto.
🎯 Disponibile a noleggio con formule personalizzate, installazione rapida e assistenza dedicata.
📩 Contattaci subito per ricevere un preventivo gratuito e scopri come il GEDA 500 Z/ZP può ottimizzare il tuo cantiere.

Lascia un commento